PENTHOUSE Linz/Urfahr Pöstling-Park - 111 m²
Hohe Straße / Bereich Bergbahnhaltestelle Schableder
Auf dem erhöht gelegenen Grundstück mit einer Fläche von 5.878 m² in Südwestlage des Pöstlingberges wurden sechs hochwertige Villen mit je 3 Wohneinheiten errichtet. Die Erschließung jeder Villa erfolgt über ein zentrales Stiegenhaus mit behindertengerechtem Aufzug, der vom Keller/Tiefgarage bis direkt in das jeweilige Penthouse führt. Weiters stehen den Besuchern 3 Gästeparkplätze zur Verfügung.
Ein großes Highlight dieser Wohnanlage ist ein zentral gelegenes Fitnessgebäude mit Terrasse sowie ein großzügiges Schwimmbad, dass allen Bewohnern zur gemeinsamen Nutzung zur Verfügung steht.
Das Gebäude wurde in Niedrigenergie - Massivbauweise errichtet. Die Ausstattung der gesamten Wohnanlage entspricht dem gehobenen Standard.
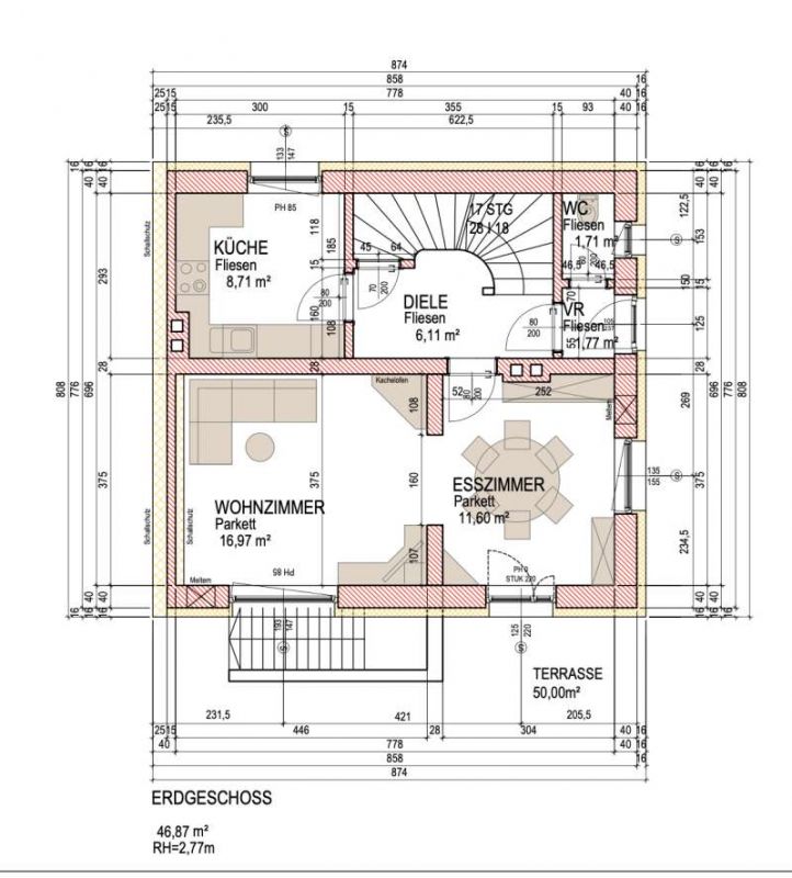
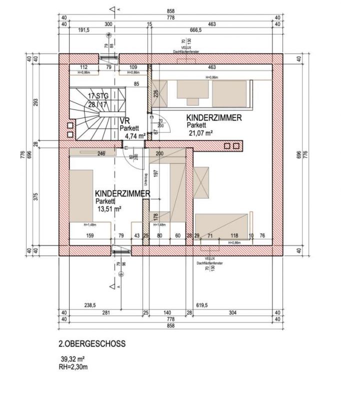
Die wunderschöne Wohnung befindet sich im Dachgeschoß und ist nach Süden ausgerichtet. Sie besitzt 2 Terrassen. Von der Hauptterrasse genießt man einen traumhaften Blick über die gesamte Stadt bis hin ins Alpenvorland. Auf der 2. Terrasse ostseitig vor dem Schlafzimmer befindet sich eine Außensauna.
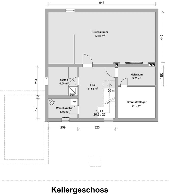
Weiters sind 2 Tiefgaragenplätze mit E- Ladestation mit WLAN und ein abgeschlossener Kellerraum der Wohnung zugehörig.
Es besteht die Möglichkeit für eine Raumerweiterung. (2 Varianten liegen vor) HWB 31
750.000
EW111
